Grupo Dyrall

FORESTA

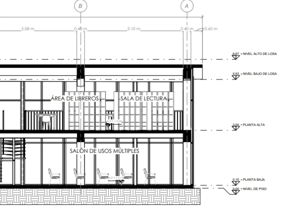
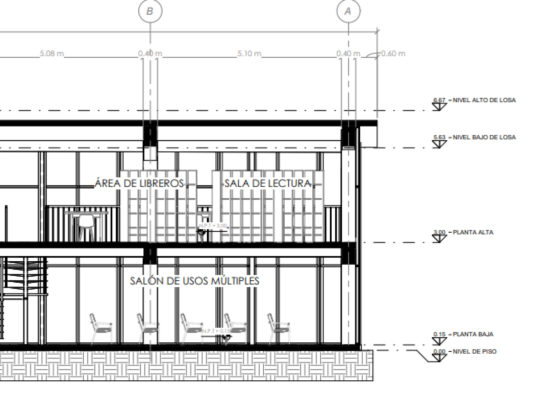
Diseño de 12 estructuras tipo y del conjunto global de la escuela Foresta en Jilotzingo, Estado de México. Se desarrolló el proyecto ejecutivo incluyendo la arquitectura, estructura, acabados e instalaciones del proyecto.

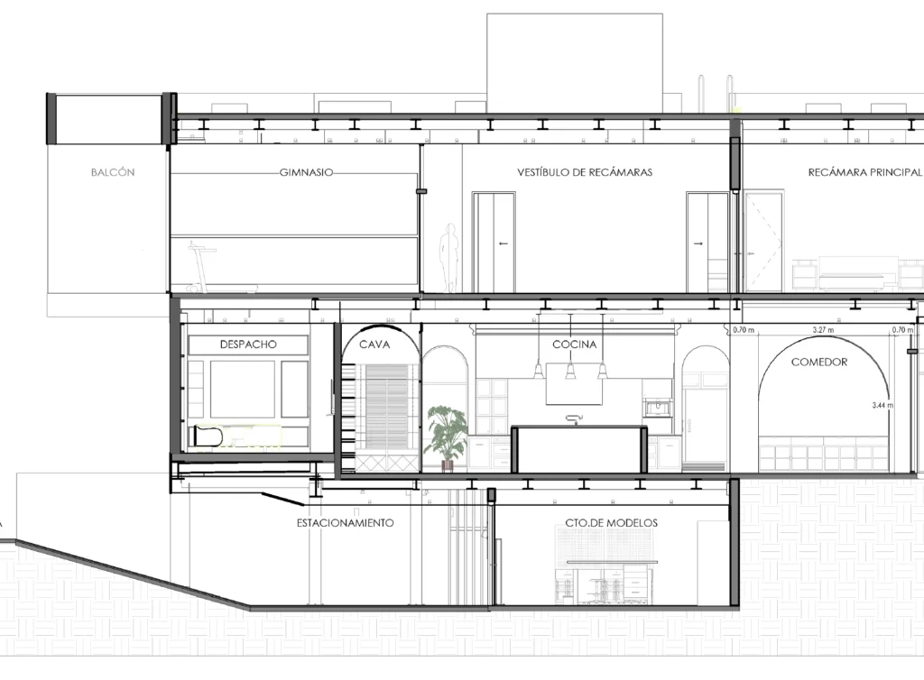
RESIDENCIA LOMAS VERDES

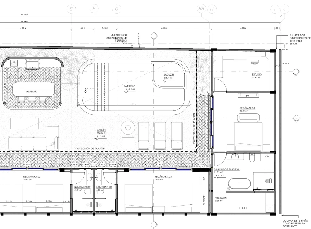
Desarrollo de proyecto ejecutivo de casa habitacional de 1,200m2 de construcción en Naucalpan, Estado de México. Incluyó el desarrollo arquitectónico, acabados, paisajismo, instalaciones y estructura.

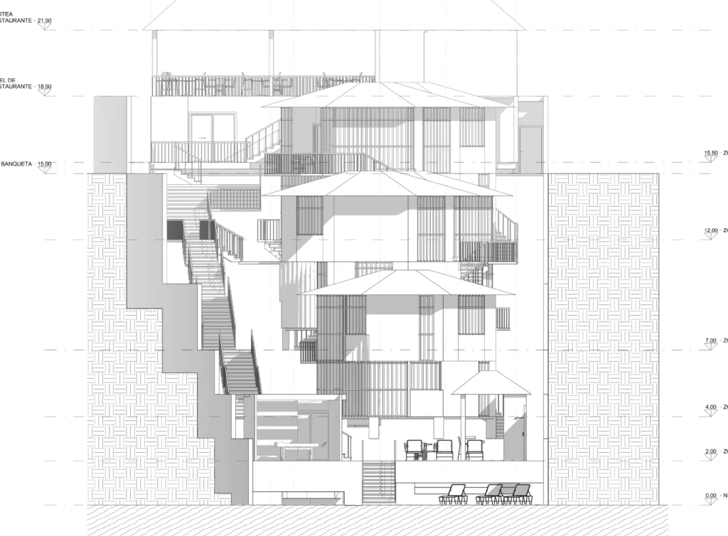
DESARROLLO BACALAR

Diseño de un conjunto residencial con enfoque ecológico a las orillas de la laguna de Bacalar en Bacalar, Quintana Roo. Desarrollo de conjunto de 10 departamentos con casa club, servicios, amenidades y un muelle.

RESIDENCIA CUAUTLA

Proyecto ejecutivo de casa de descanso en Cuautla, Morelos. Desarrollo de vivienda horizontal de 230m2 con cuerpos a 1 y 2 aguas y una alberca con jacuzzi incluyendo todo lo correspondiente a arquitectura.

CONJUNTO OCEANO

Diseño de proyecto ejecutivo para remodelación de departamento en Punta Diamante, Acapulco, Guerrero. El proyecto incluyo el diseño arquitectónico, estructural y de instalaciones. eléctricas, hidráulicas, sanitarias y HVAC.

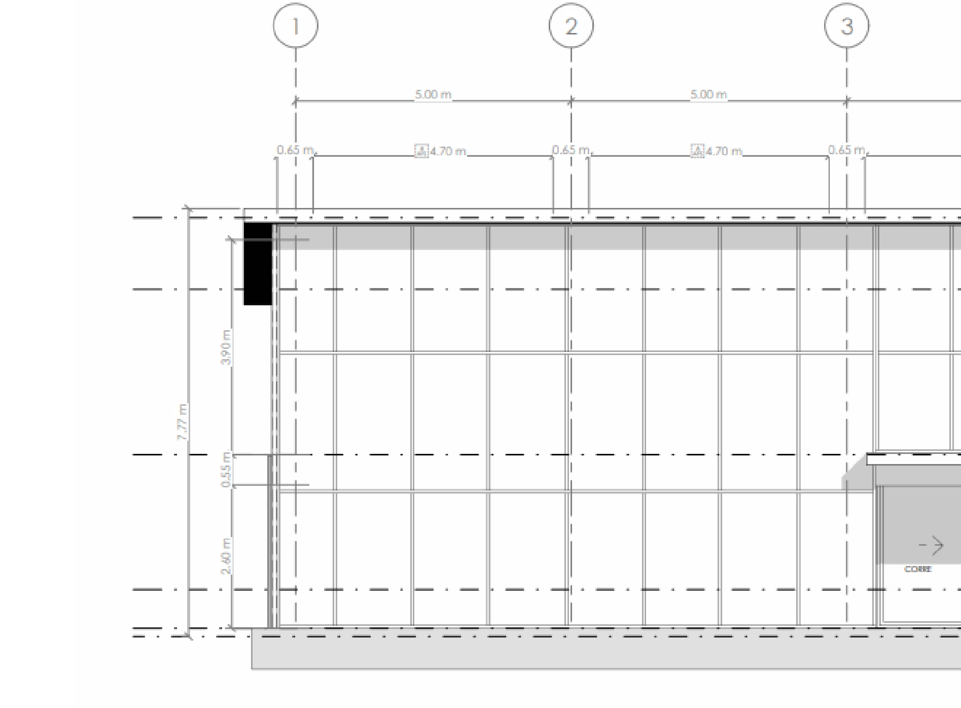
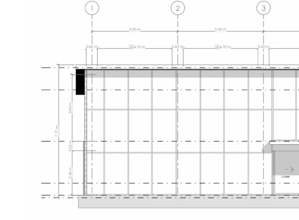
BODEGA SAN MATEO

Diseño de proyecto ejecutivo de nave industrial de 5,000 m2 con claros de distancia variable y altura libre de 12m, oficina, patio de maniobras, estacionamiento de empleados, caseta de seguridad y PTAR.

CONJUNTO PENÍNSULA

Diseño de proyecto ejecutivo para remodelación de departamento en Punta Diamante, Acapulco, Guerrero. El proyecto incluyo el diseño arquitectónico, estructural y de instalaciones eléctricas, hidráulicas, sanitarias y HVAC.

PROYECTO EJECUTIVO SEGIAGUA

Diseño y cálculo de proyecto ejecutivo de 10 pozos profundos de agua en la Ciudad de México para la Secretaría de Gestión Integral del Agua. Se desarrollo los proyectos arquitectónicos, estructurales  y electromecánicos.